SaiNet Point1 画像の切り抜き作業が大変、切り抜きが上手にできない。Point2 即日納品、基本料なしPoint3 品質確認(お試し)無料 sitemaphome
トップページお問い合わせサイトマップ
会社案内 サービス内容 サービスご利用の流れ ファイルの転送方法 お支払い方法 お申し込み
切り抜きDTP印刷(組版)データ入力 & 翻訳業務CAD施工図トレース業務漫画制作
 
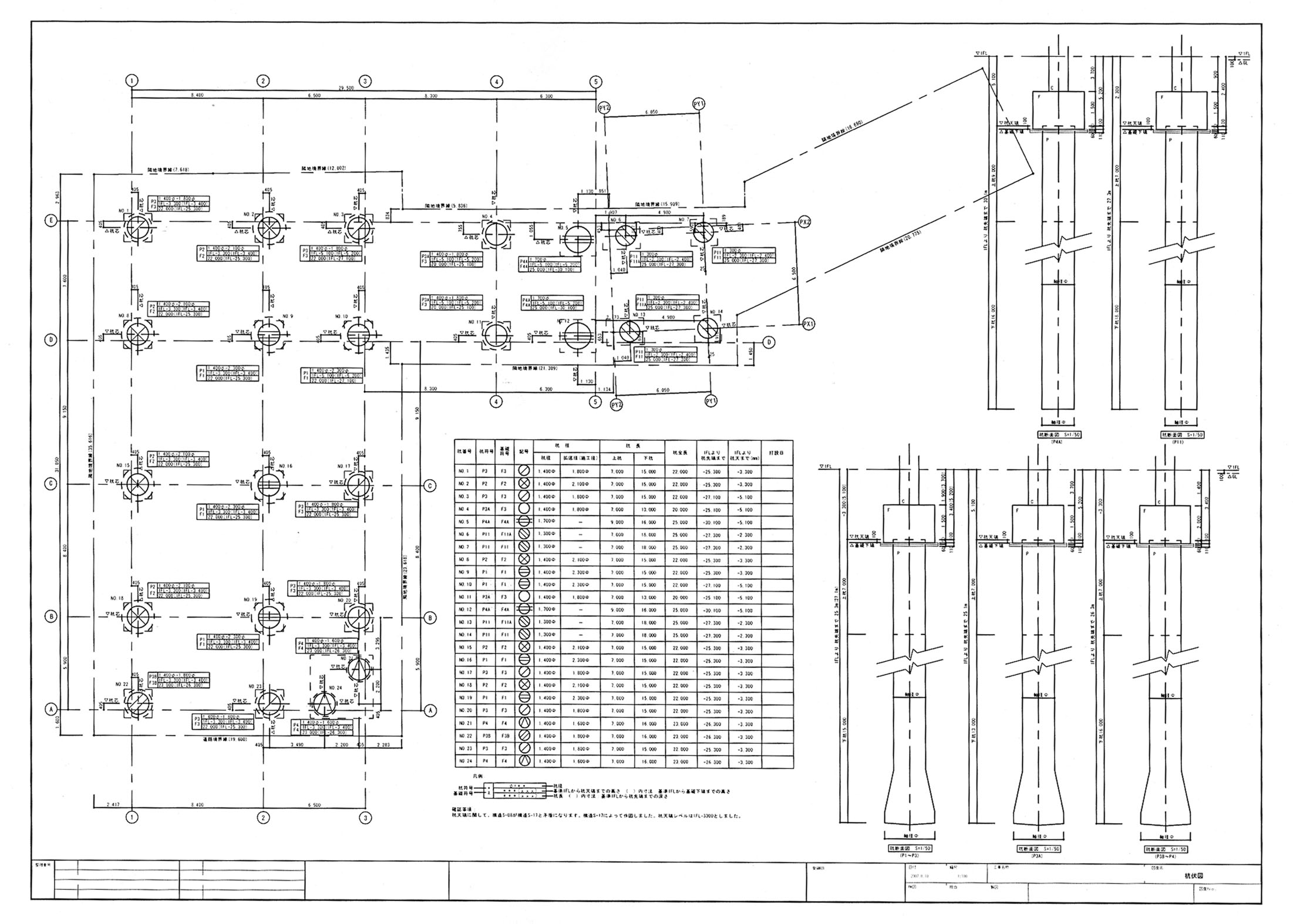
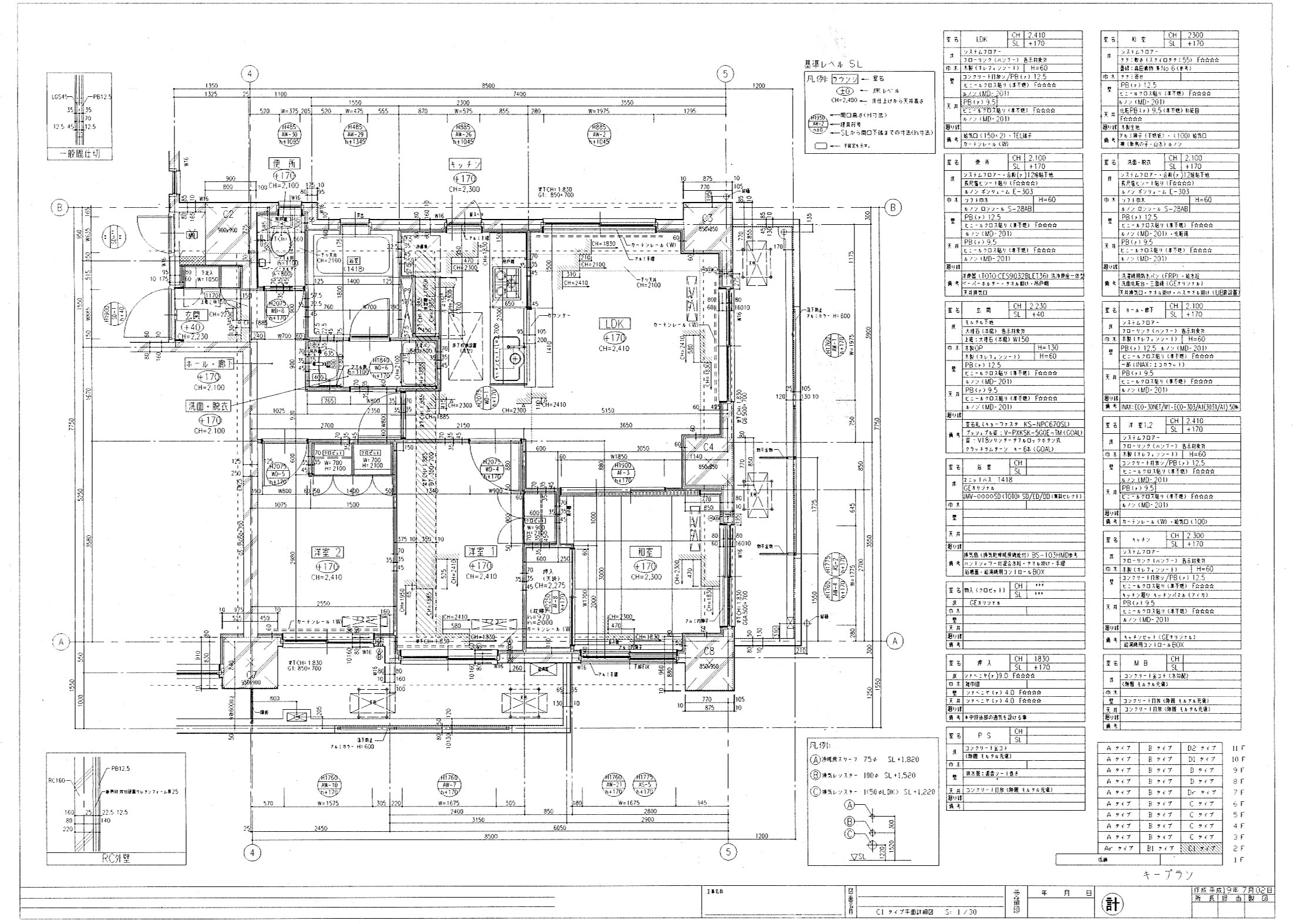
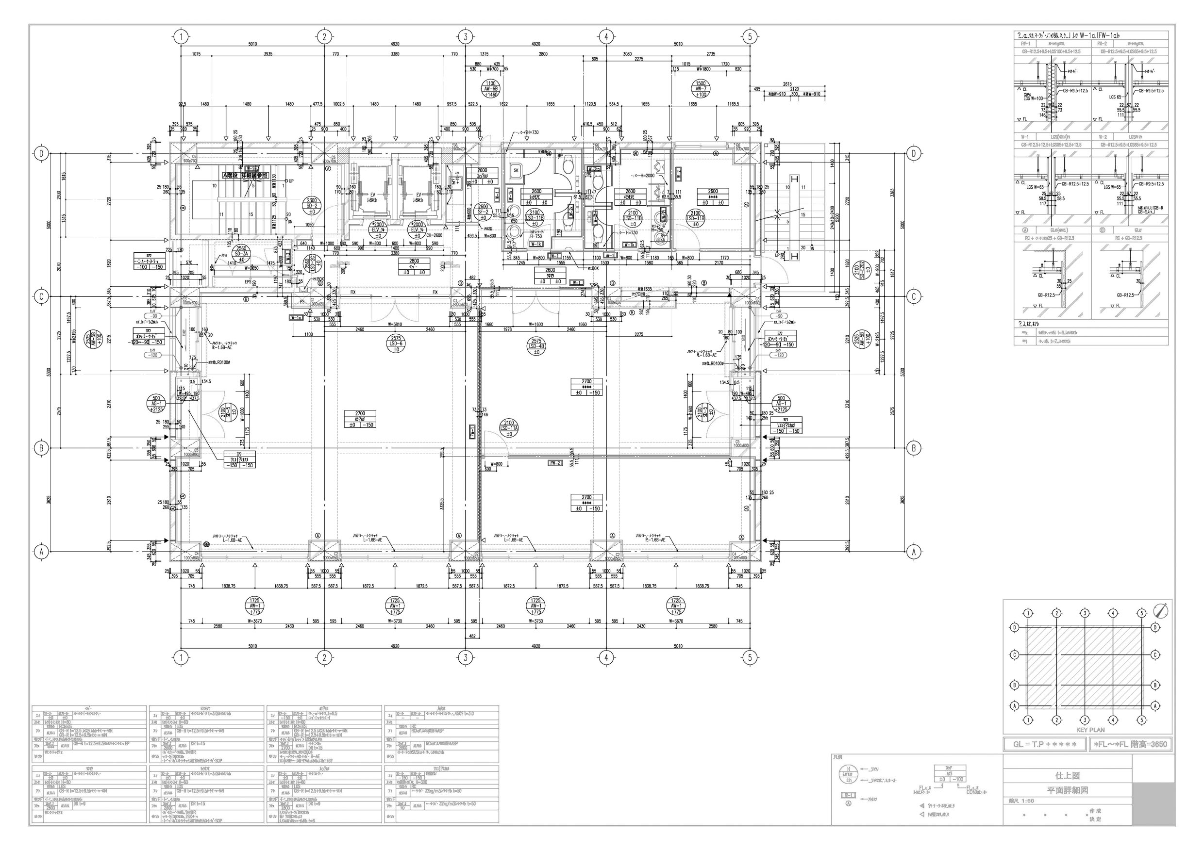
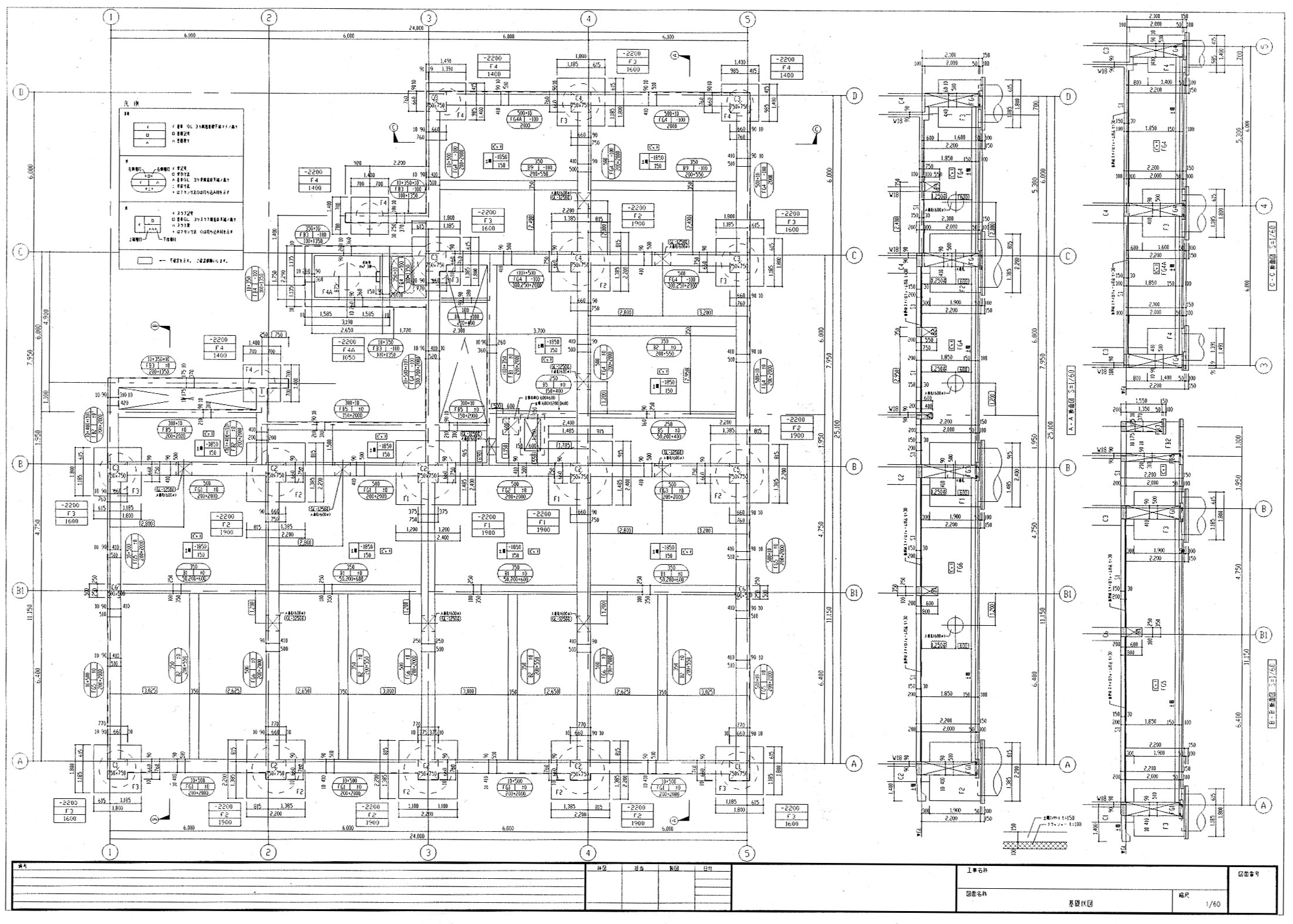
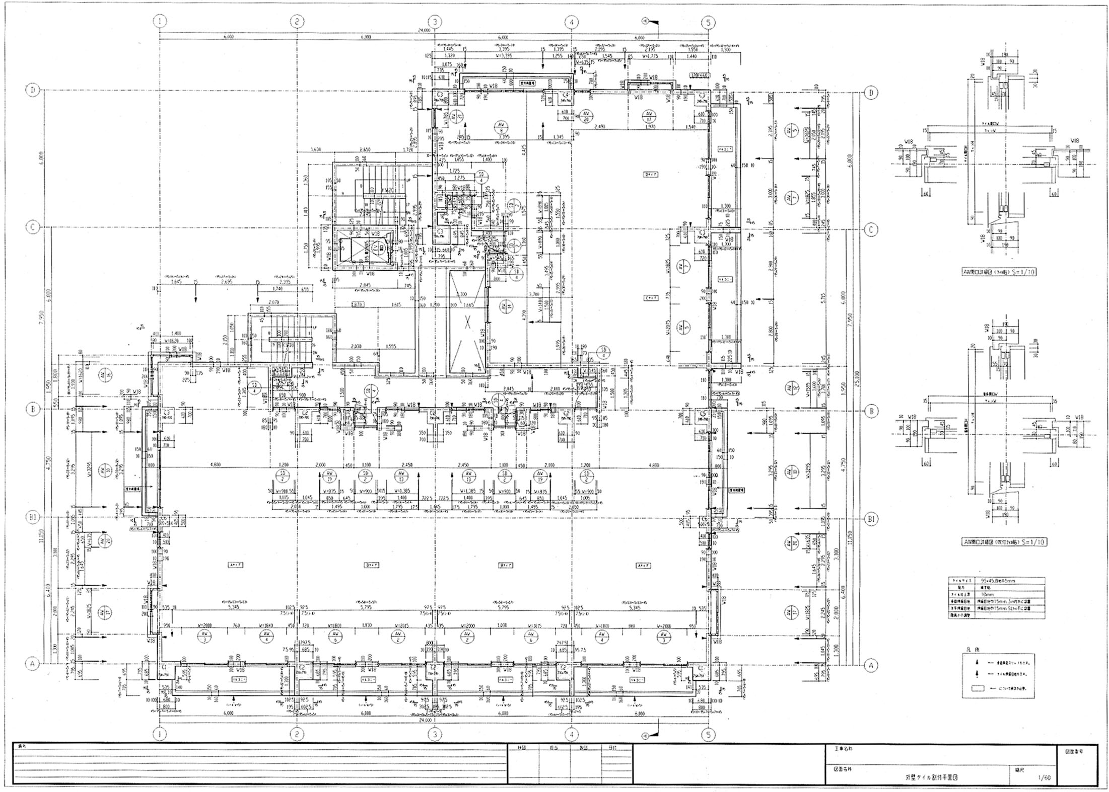
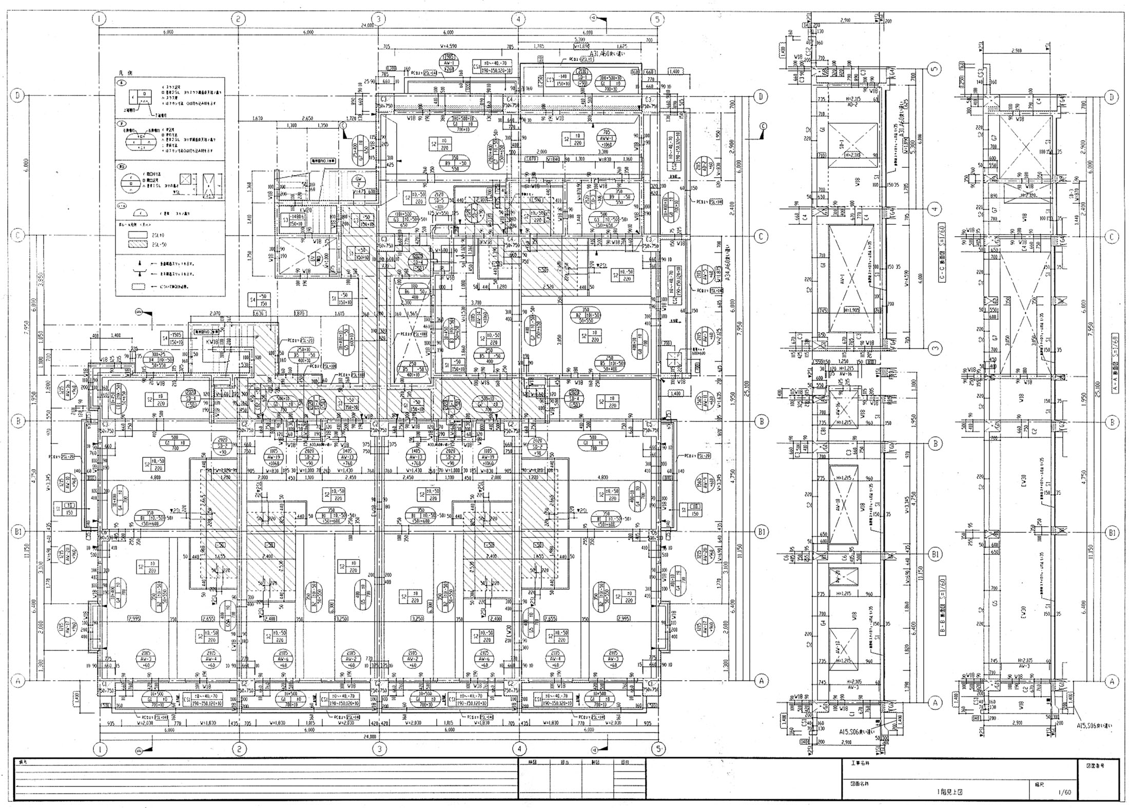
CAD施工図
 
建築部門 設計図、施工図(平面詳細図、躯体図、タイル割付図、パネル割付図、天井伏図、展開図など)、CGパース
土木部門 道路擁壁、水路ボックスの配列図、コンクリートの製品配筋詳細図
トレース部門 CADトレース(平面図、立面図、断面図、配筋詳細図、耐震改修図面など)
使用ソフト AUTOCAD、JWWCAD、3DMAX 、PHOTOSHOPなど
お客様からの訂正指示
お客様からの依頼指示
 
 
 
サービスご利用の流れ
 
お申し込み
会社案内お問い合わせフォーム新規登録フォーム製品データー転送完了フォーム
Copyright